Modernes Wohnen mit Geschichte – Neubauwohnungen in Großbardorf
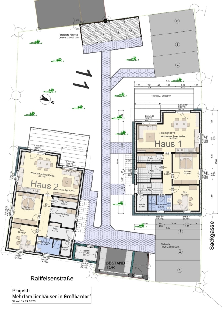
In Großbardorf entsteht ein einzigartiges Wohnprojekt: Zwei moderne Neubauten mit insgesamt vier Eigentumswohnungen (je ca. 100 m²) – harmonisch eingebettet in ein denkmalgeschütztes Ensemble. Das historische Tor vor Ort bleibt erhalten und verleiht dem Neubauprojekt seinen besonderen Charakter.
Die Wohnungen im Überblick
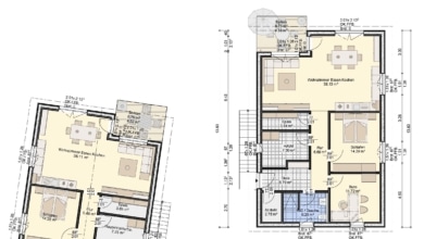
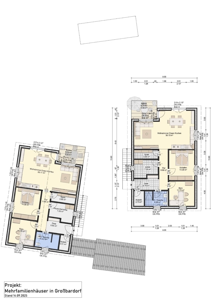
- 4 Eigentumswohnungen mit ca. 100 m² Wohnfläche
- 2 Wohnungen im Erdgeschoss: barrierefrei mit großzügiger Terrasse
- 2 Wohnungen im Dachgeschoss: jeweils mit Balkon, Zugang über elegante Außentreppe
- Moderne Architektur kombiniert mit historischem Flair
Besonderheiten
- Grundrisse: zum Teil noch veränderbar (aktuelle Grundriss-Pläne als PDF – Stand 14.09.2025: EG, OG)
- Denkmalgeschütztes Tor: bleibt als markanter Blickfang erhalten
- Technikgebäude integriert sich unauffällig ins Ensemble
- Nahwärmenetz in Großbardorf: autarke, nachhaltige Energieversorgung für Heizung und Strom
- Attraktive Lage: ruhige Umgebung, gleichzeitig gute Anbindung
Galerie:
Investition
- Kaufpreis: ab ca. 320.000 € je Wohnung
- Baustart: geplant 2026, abhängig von der Nachfrage
Warum dieses Projekt besonders ist
Das Projekt in Großbardorf verbindet moderne Wohnqualität mit historischem Erbe. Während Sie in einer energieeffizienten Neubauwohnung leben, prägt das historische Tor den Charakter der Anlage – ein Zuhause mit Geschichte und Zukunft.
Ihr Interesse
Nutzen Sie jetzt die Gelegenheit, sich frühzeitig für eine der begehrten Wohnungen vormerken zu lassen.




































